GALPÃO CEG

PISO EM CONCRETO PARA 6 TONELADAS POR M²

PÉ DIREITO LIVRE DE 8 METROS

FLEXIBILIDADE DE PLANTAS E METRAGEM

CUSTO BENEFÍCIO

LOCALIZAÇÃO ESTRATÉGICA

TOTAL INFRA-ESTRUTURA

DOCAS INTERNAS E EXTERNAS

AMPLOS PÁTIOS DE MANOBRA

108 VAGAS PARA VEÍCULOS E 12 CARRETAS SIMULTANEAMENTE

PORTARIA 24 HORAS COM CÂMERAS

PROJETO DE INCÊNCIO COM DETECTORES DE FUMAÇA

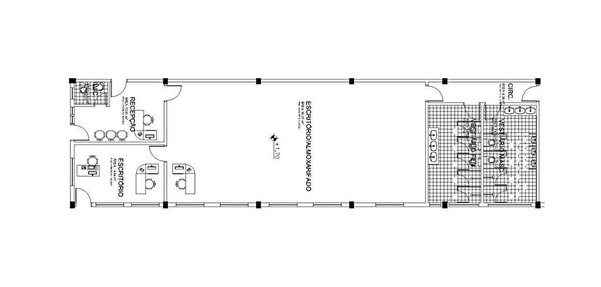
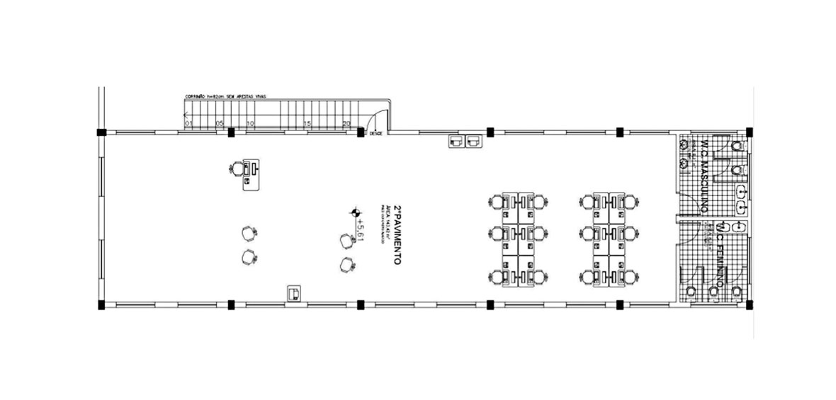
ÁREAS PARA ESCRITÓRIOS

LOCALIZAÇÃO

RUA JOSÉ FERNANDES FILHO, 335 - GUATUPÊ

ESPECIFICAÇÕES TÉCNICAS

TIPO DE PAREDES

As paredes de fechamento são de blocos de concreto aparente frisados impermeabilizados e pintados. As paredes internas das áreas molhadas são azulejadas até o teto.

TIPOS DE PISOS

Os pisos internos dos galpões são de concreto armado alisado com capacidade de carga de 6 toneladas por metro quadrado. As áreas internas dos escritórios e as áreas molhadas são revestidas com cerâmica.

PÉ-DIREITO

Os galpões apresentam pé-direito livre de 8 metros.

DIMENSÕES DOS MÓDULOS

Galpões tipo 1, 2 e 3: 20 x 45m.
Galpão tipo 4: 20 x 65m.

TIPO DE COBERTURA

As coberturas são estruturas de concreto armado pré-moldado e telhas translúcidas convenientemente espaçadas para proporcionar iluminação natural.

LARGURA DAS VIAS E INCLINAÇÕES

As vias de circulação tem largura mínima de 13 metros com inclinações máximas de 6,5%.

DOCAS E ACESSOS AOS BARRACÕES

Galpões tipo 1: 2 docas internas e 3 docas externas;
Galpões tipo 2 e 3: 1 doca interna, 3 docas externas e 1 acesso em nível;
Galpões tipo 4: 4 docas externas e 1 acesso em nível.

ACESSO PRINCIPAL

O acesso principal é pela rua José Fernandes Filho com largura de 22 metros - permitindo que caminhões maiores entrem em linha reta no condomínio, facilitando as manobras.

ÁREAS

Barracões tipo 1, 2 e 3: depósito com 834,00 m²; escritórios, vestiários e mezanino com 140,00 m²;
Barracões tipo 4: depósito com 1.115,00 m²; escritórios, vestiários e mezanino com 336,00 m²;
Lojas: 1.023,22 m²;
Portaria 60,00 m²;
Área total construída: 12.660,00 m²;
Área total do terreno: 40.800,15 m².

ESTACIONAMENTO DE VEÍCULOS E CAMINHÕES

108 vagas para estacionamento de veículos, sendo 05 para deficientes físicos, perfazendo uma área total de 2.310,00 m2. Para os caminhões foi reservada uma área de 2.200,00 m2, capaz de abrigar simultaneamente 12 carretas.

CONHEÇA NOSSOS EMPREENDIMENTOS

A DEDICAlog possui 3 endereços de galpões com áreas planejadas de fácil acesso.
As possibilidades se adequam à variados tamanhos e estruturas,
atendendo a necessidade de cada cliente.

EMPREENDIMENTOS

ENTRE EM CONTATO E AGENDE SUA VISITA